.........
boe
Profielfoto van Architect2GO
Architect2GO
Tedingerbroekweg 9, 2611NH Nootdorp
maandag
09:00 - 18:00
dinsdag
09:00 - 18:00
woensdag
09:00 - 18:00
donderdag
09:00 - 18:00
vrijdag
09:00 - 18:00
zaterdag
Gesloten
zondag
Gesloten

Modern familiehuis

Dit ontwerp voor een moderne, betaalbare en energiezuinige huis is licht, ruimtelijk en zonnig.

Ben je op zoek naar een betaalbaar ontwerp voor een huis?

Dan is dit ontwerp wellicht iets voor jou!

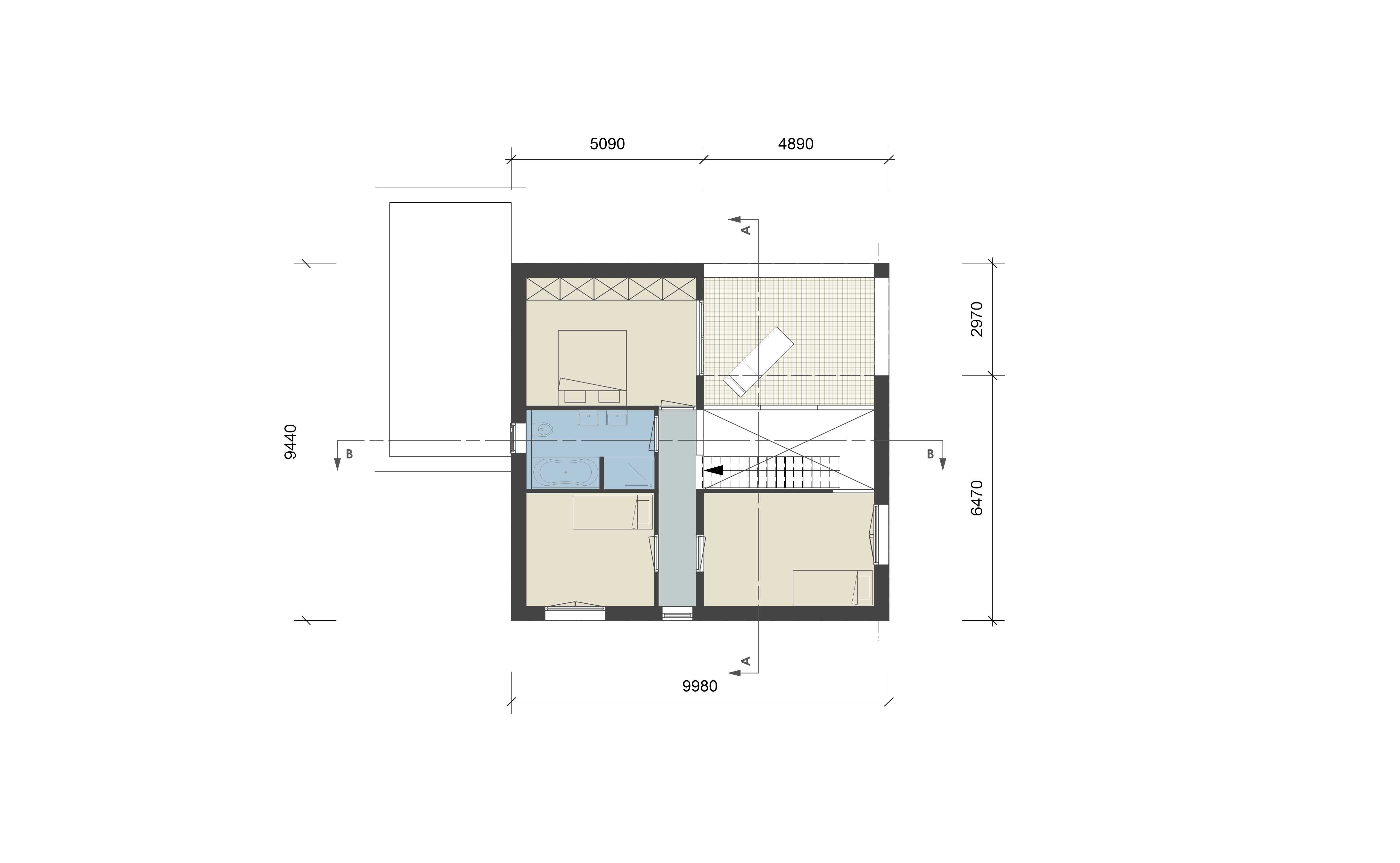
Het compacte ontwerp met 3 slaapkamers is geschikt voor een gezin maar ook niet te groot voor 2 personen. Daarnaast kan het op simpele wijze leveneloopbestendig worden gemaakt. Door de compacte afmetingen pas dit ontwerp op kavel vanaf 350m2.

Aan de voorzijde is de woning ingetogen. De materiaalkeuze is eigentijds; stucwerk (in kleur naar keuze) met warme accenten van hout. Een verspringende indeling van de kozijnen zorgen voor dynamiek in de gevel.

De begane grond heeft een loft-achtige indeling. De open plattegrond i.c.m. de vide zorgt voor een ruimtelijke beleving in diverse richtingen. Op de verdieping zijn 3 slaapkamers, een ruime badkamer en een dakterras. Dit oppervlak kan als optie bij de wonig worden betrokken. Een mogelijkheid is dan om de vide te vergroten of een ruimere indeling op de verdieping te realiseren. De volledig glazen pui met schuifdeuren naar het terras verbindt buiten volledig met binnen en versterkt de ruimtelijkheid, maar maakt de woning vooral zeer licht en zoning