.........
boe

Een tv beugel ophangen

De tv beugel is speciaal bedoeld om je tv of scherm mooi en handig aan de muur op te hangen. Dat kan zowel thuis als op kantoor.

De tv beugel monteren

De beugel waar de televisie aan hangt, is veelal ondiep waardoor je ze onzichtbaar achter de tv kunt wegwerken. Het ophangen van je tv is natuurlijk een slim idee. Het bespaart ruimte, is ergonomische en maakt de zitkamer een stuk strakker.

Als je de tv beugel zelf gaat monteren is het belangrijk dat je vooraf de kwaliteit van de muur goed checkt. Wat is dan het juiste ophangsysteem voor jouw woonkamer? Een muur van baksteen of beton kan behoorlijk wat gewicht dragen, maar een gipswand is veel poreuzer. Zorg voor de juiste pluggen, schroeven en boortjes.

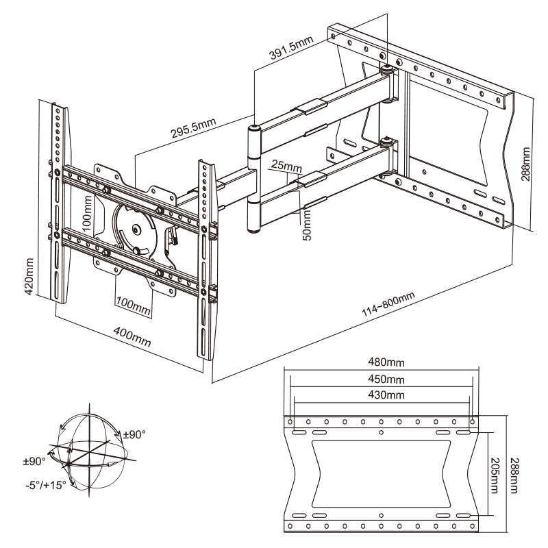
De juiste ophangbeugel

Als je de muur geschikt hebt bevonden om de tv beugel aan op te hangen, is het van belang dat je een passende beugel vindt voor jouw tv. Een groot en oud toestel is uiteraard veel zwaarder dan de moderne LED-tv. Is de tv beugel geschikt voor dat zwaardere gewicht? Iedere moderne tv is uitgerust met schroefgaten volgens de standaard VESA-maten. Kies een ophangsysteem dat naadloos past bij jouw type televisie.

Typen tv beugels

Er zijn verschillende soorten tv beugels in omloop. Van de traditionele vaste tv beugel tot draai- en kantelbare beugels en zelfs speciale plafondbeugels. Een draai- en kantelbare tv wandbeugel zorgt voor extra druk op de bevestigingspunten aan de muur. Wees hier alert op. En ook bij een plafondbeugel is het belangrijk dat je draagkracht van het plafond goed controleert. Zorg altijd voor voldoende afstand tussen de wand en de tv. Zo houd je genoeg ruimte over voor o.a. hdmi- en scartkabels.

Online kopen en zelf monteren

Ben je klaar voor het bestellen en monteren van je nieuwe tv beugel? Dan hebben we nog twee tips. Hang ten eerste een tv nooit alleen op. Als je met z’n tweeën bent, controleer je samen eenvoudig of de tv beugel waterpas hangt en monteer je vervolgens efficiënt de tv op de beugel. En daarna kun je samen vanaf de bank de ideale kijkhoek bepalen. En ten tweede is het aan te raden om de schroeven na een aantal maanden nog wat aan te draaien. Er kan na een tijdje wat speling ontstaan zijn.