.........
boe
Profielfoto van Gras en Groen, uw tuin in goede handen!
Gras en Groen, uw tuin in goede handen!
Hedikhuizerweg 21, 5222 BC DEN BOSCH
maandag
09:00 - 17:00
dinsdag
09:00 - 17:00
woensdag
09:00 - 17:00
donderdag
09:00 - 17:00
vrijdag
09:00 - 17:00
zaterdag
Op afspraak -
zondag
Gesloten

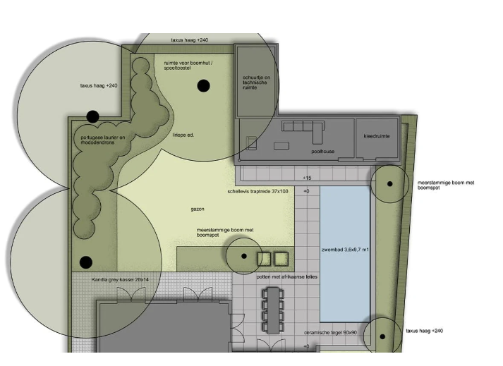
Wat doet Gras & Groen bij tuinaanleg

Van ontwerp tot oplevering met oog voor detail en vakmanschap

Een tuin aanleggen begint bij een goed plan – en juist daar blinkt Gras & Groen in uit. Het hoveniersbedrijf uit Den Bosch verzorgt complete tuinaanleg en renovaties, van het eerste ontwerp tot de laatste plant in de grond. Of het nu gaat om een moderne stadstuin, een landelijke buitenruimte of een luxueuze tuin met zwembad en verlichting, alles wordt met dezelfde zorg en precisie uitgevoerd.

Het traject start altijd met een persoonlijk gesprek waarin wensen, stijl en gebruik besproken worden. Op basis daarvan wordt een eerste ontwerp en prijsindicatie gemaakt. Zodra het ontwerp is goedgekeurd, volgt de planning. Binnen zes tot acht weken kan de aanleg van start gaan. Alle materialen worden zorgvuldig voorbereid, zodat het team van hoveniers efficiënt aan de slag kan.

Tijdens de aanleg zorgen de vakmensen van Gras & Groen voor een nauwkeurige uitvoering volgens plan. Er is ruimte voor kleine aanpassingen, zodat het eindresultaat volledig aansluit op de wensen van de klant. In de laatste fase worden de planten geplaatst, de afwerking verzorgd en wordt de tuin samen met de klant opgeleverd. Daarbij geven de hoveniers praktische uitleg over onderhoud en verzorging, zodat de tuin zijn uitstraling behoudt.

Gras & Groen staat bekend om hun heldere communicatie, vakmanschap en oog voor detail. Bij opdracht voor een tuinaanleg bieden ze bovendien een gratis tuinontwerp aan. Met hun brede expertise – van bestrating en beplanting tot verlichting en waterpartijen – leveren ze tuinen af die niet alleen mooi zijn om te zien, maar ook prettig zijn om in te leven.