Representatieve architectuur, royale leefruimtes dat biedt de Schwörer modelwoning plan 690.4. Warm hout voor modern design, ook bij het ontwerp tellen ecologische argumenten.

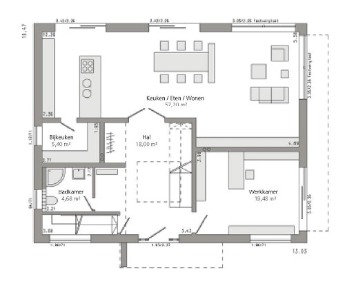
Representatieve architectuur, royale leefruimtes voor familie en gasten - dat biedt de Schwörer modelwoning plan 690.4 in Fellbach. Moderniteit gecombineerd met natuurlijke materialen zoals hout en steen creëren spanning. De ingebouwde keuken krijgt een cultstatus en is een ontmoetingsplaats voor familie en gasten.
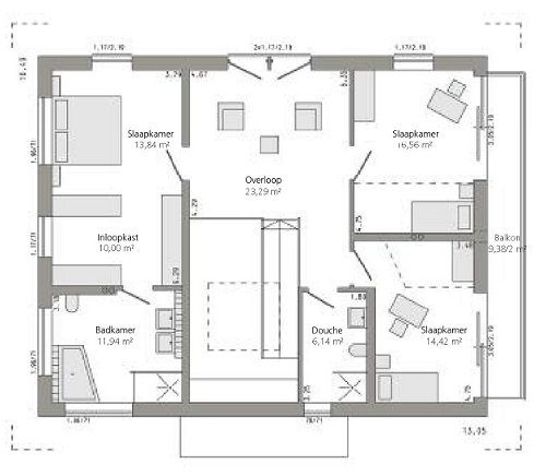
Innovatieve ideeën gecombineerd met vakmanschap. De houten trap met een glazen balustrade, het wellnessbad, de kleedruimte en slaapkamers zijn van waarde voor uw huis van de toekomst.




Representatieve architectuur, royale leefruimtes voor familie en gasten - dat biedt de Schwörer modelwoning plan 690.4 in Fellbach. Moderniteit gecombineerd met natuurlijke materialen zoals hout en steen creëren spanning. De ingebouwde keuken krijgt een cultstatus en is een ontmoetingsplaats voor familie en gasten.
Innovatieve ideeën gecombineerd met vakmanschap. De houten trap met een glazen balustrade, het wellnessbad, de kleedruimte en slaapkamers zijn van waarde voor uw huis van de toekomst.




Representatieve architectuur, royale leefruimtes voor familie en gasten - dat biedt de Schwörer modelwoning plan 690.4 in Fellbach. Moderniteit gecombineerd met natuurlijke materialen zoals hout en steen creëren spanning. De ingebouwde keuken krijgt een cultstatus en is een ontmoetingsplaats voor familie en gasten.
Innovatieve ideeën gecombineerd met vakmanschap. De houten trap met een glazen balustrade, het wellnessbad, de kleedruimte en slaapkamers zijn van waarde voor uw huis van de toekomst.




Representatieve architectuur, royale leefruimtes voor familie en gasten - dat biedt de Schwörer modelwoning plan 690.4 in Fellbach. Moderniteit gecombineerd met natuurlijke materialen zoals hout en steen creëren spanning. De ingebouwde keuken krijgt een cultstatus en is een ontmoetingsplaats voor familie en gasten.
Innovatieve ideeën gecombineerd met vakmanschap. De houten trap met een glazen balustrade, het wellnessbad, de kleedruimte en slaapkamers zijn van waarde voor uw huis van de toekomst.


