.........
boe
Profielfoto van Brummelhuis
Brummelhuis
Maagdenburgstraat 18, 7421 ZC Deventer

Schuurwoning

Deze moderne schuurwoning van Brummelhuis kenmerkt zich door zijn simpele, heldere vorm.

Schuurwoning - Brummelhuis

In dit ontwerp is gekozen voor een mansardekap die de gehele hoofdbouw omsluit en bijna tot aan het maaiveld doorloopt. De robuuste windveer accentueert de dakvorm. Uiteraard zijn er tal van mogelijkheden qua uitstraling, materialen, afwerking en indeling. In dit ontwerp is de zijgevel gesloten met dakpannen maar dit kan desgewenst ook met meer openheid uitgevoerd worden. De garage/aanbouw is ontworpen in een contrastkleur, passend bij de hoofdbouw.

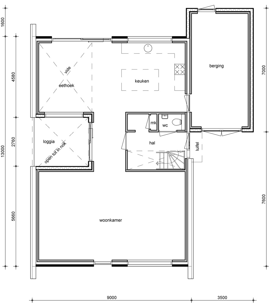
De royale woonkamer beslaat de hele voorzijde van de woning. De achterzijde biedt ruimte aan een grote woonkeuken met eethoek. De vide boven de eethoek zorgt niet alleen voor veel lichtinval maar ook voor een ruimtelijk effect waarbij de loggia in de zijgevel voor een bijzondere plek in deze woning zorgt.
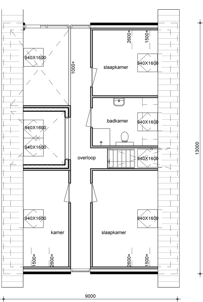
Door de vide en de loggia heeft de verdieping een speelse indeling gekregen die ruimte biedt aan 3 slaapkamers en een badkamer.

Brummelhuis begeleidt u door het hele traject van ontwerp tot realisatie. Zij vertalen uw wensen in een praktische en betaalbare woning in de door u gewenste stijl en met uw eigen indeling. Uw woning wordt traditioneel gebouwd. Dit verleent u alle flexibiliteit en vrijheid. De afwerking is compleet, degelijk en duurzaam. Alle benodigde vergunningen worden voor u geregeld. Dat Brummelhuis ook uw dromen kan verwezenlijken blijkt uit dit voorbeeld.