.........
boe

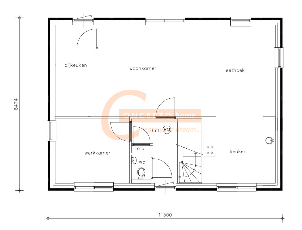
Mooie woning type Portland

Woning Type Portland van Concreto Home. Leverbaar vanaf € 180.895,-

Dit zijn de voordelen van je droomhuis type Portland:

- Traditioneel gebouwd
- Keramische dakpannen
- Luxe sanitair en tegelwerk
- Energiezuinig
- Eigen huisarchitect
- Flexibel
- Hardhouten buitenkozijnen en binnenkozijnen

Meer informatie

Voor meer informatie bezoek ook eens onze website en/of volg ons op Facebook.