.........
boe
Profielfoto van LUXboX
LUXboX
Lorentzstraat 3b, 6716 AD Ede
maandag
10:00 - 17:00
dinsdag
10:00 - 17:00
woensdag
10:00 - 17:00
donderdag
10:00 - 17:00
vrijdag
10:00 - 17:00
zaterdag
Op afspraak -
zondag
Gesloten

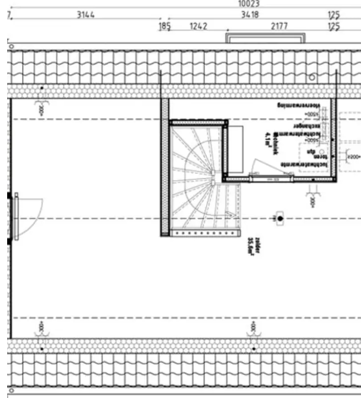
Jouw droomzolder stap voor stap realiseren

Van eerste idee tot de perfecte inrichting, volledig begeleid aan huis

Wil jij verrast worden door onze service om jouw zolder te transformeren? Meld je aan en wij nemen contact met je op om samen jouw ideale zolderplan te maken.

Stap 1: Maak een afspraak
Vul het aanmeldformulier in en geef aan waar je graag hulp bij wilt. Eén van onze ontwerpers neemt contact met je op om een afspraak in te plannen, zodat het traject persoonlijk en op maat kan beginnen.

Stap 2: Advies en plan bij jou thuis
Tijdens het gesprek bij jou thuis presenteert de ontwerper een compleet plan voor jouw zolder. Er is ruimte om het ontwerp aan te passen op basis van jouw wensen en eisen. Na afloop ontvang je het plan en de tekeningen digitaal, zodat je alles overzichtelijk bij de hand hebt.

Stap 3: Definitieve keuzes in het Belevingscentrum
Neem het plan en de tekeningen mee naar het LUXboX belevingscentrum om de laatste keuzes te maken. Hier ligt ook de €200 kortingsvoucher voor je klaar, zodat je jouw zolderproject voordelig kunt afronden.

Met deze drie stappen begeleiden wij je van de eerste ideeën tot een lichte, functionele en sfeervolle zolderruimte, volledig afgestemd op jouw persoonlijke wensen.