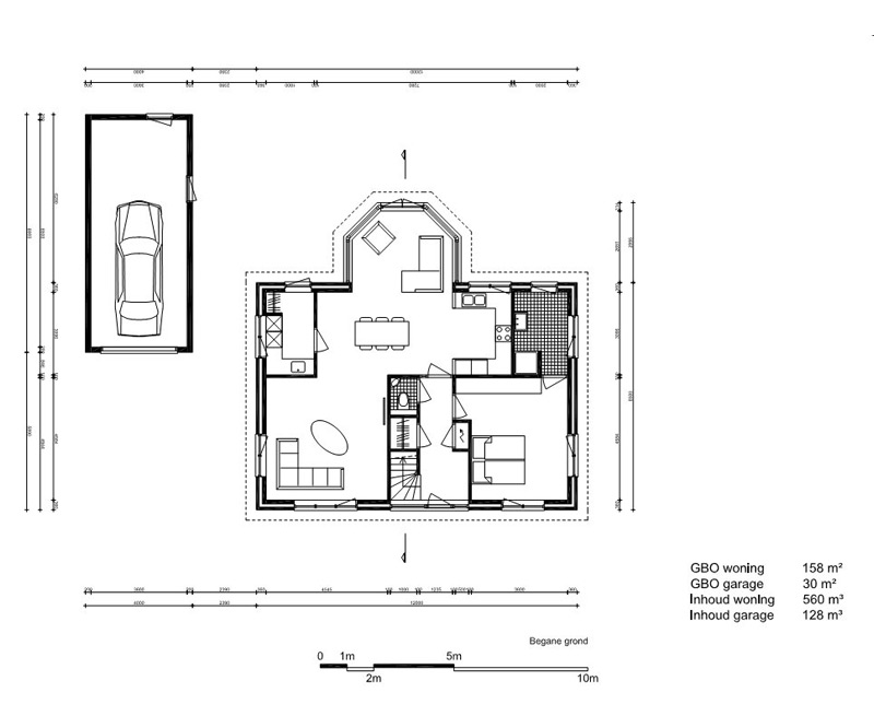
Zo lang mogelijk thuis in eigen huis. In deze levensloopbestendige woning van Poortinga zou dit mogelijk moeten zijn. Levensloopbestendige woningen zijn in principe bedoeld voor iedereen, zowel gezinnen met jonge kinderen alsook ouderen tot op hoge leeftijd. Een levensloopbestendige woning biedt maximale uitgangspunten voor een zo groot mogelijke zelfredzaamheid. De hier getoonde woning van Poortinga is gebouwd in landelijke stijl
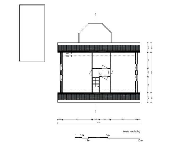
Het Landelijke woonkarakter staat voor warmte en romantiek. Teruggrijpend op bouwstijlen uit het eind van de 19e en het begin van de 20e eeuw. Een landelijke stijl nieuwbouw woning wordt van warme materialen gebouwd. Dat biedt beschutting en intimiteit.
Romantisch, warm, vriendelijk en sfeervol. Zo wordt de landelijke stijl gekarakteriseerd. Onze architecten en elke opdrachtgever geeft daar zijn hoogstpersoonlijke vertaling aan. Wolfseinden, rietgedekte kappen, luiken, kruisroeden, lage gootlijnen, bloemkozijnen en veel houtwerk zijn de stijlmiddelen die toegepast worden bij het ontwerp van een landelijke villa.


